Details Revealed For New Retail Flagship At 212 E Ontario Street In Streeterville

Initial details have been revealed for the commercial redevelopment of 212 E Ontario Street in Streeterville. Located just over a block east from N Michigan Avenue, the project will restore and renovate the existing historical mansion. Efforts are being led by Chicago-based jewelry brand Local Eclectic who will move into the former home and open their first store front.

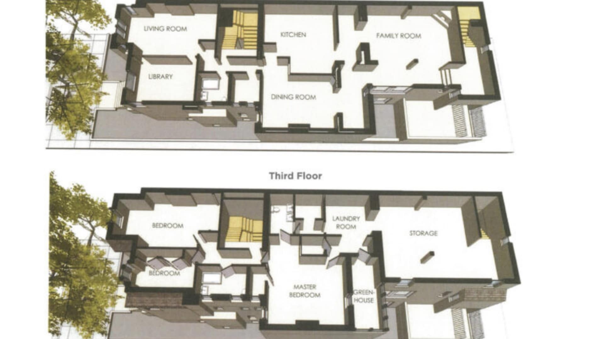
Rising two stories in height with an additional garden level, the home was built in 1885 on land that used to belong to Chicago’s first mayor William Ogden. The Queen Anne and Romanesque-style home was designed by Burling & Whitehouse, having mostly been used as a home, gallery, and light commercial use over the years according to Apartments.com.

Now the home was purchased by Local Eclectic’s founder earlier this year for $3.3 million. They have tapped New York-based design firm BoND Design for the interiors, marking the firm’s first permanent Chicago project. Since the home is considered a landmark, most of the work will take place inside as the exterior will be preserved.

Inside on the main floor will be a new storefront and cafe serving wine, coffee, and light eats which will be available standalone or as part of the shopping experience. The remaining space will become the brand’s new offices where its 21 employees will be moved to, this will be supported by various back of house spaces and rear alley garage.

Work is set to commence on the space in the next few months once they receive their permits, with an opening set for early next year.

Credits: Yimby

View More Articles