Austin United Alliance celebrates topping out

The six-story building at 5200 W. Chicago will have 78 units and retail.

Austin United Alliance recently celebrated a topping out ceremony for the new six-story, mixed-income residential development along the Soul City Corridor in the Austin neighborhood. Planned by Oak Park Regional Housing Center and Pivotal Housing Partners, the project site is located at 5200 W. Chicago and integrates the former historic Laramie State Bank Building.

The event featured the traditional signing and raising of the final steel beam—an enduring symbol of progress that marks both the completion of the structural frame and the project’s successful reach of its halfway construction point. The beam-signing drew an enthusiastic turnout from Austin residents, eager to witness tangible progress on a development designed to bring new housing options, renewed energy, and long-term stability to the community.

Designed by Valerio Dewalt Train Associates, the L-shaped building will stand six floors tall, directly west of the Laramie State Bank. Matching the height and width of the bank’s frontage on its western end of the L-shaped massing, the building will be accented with white frame elements overlooking W. Chicago Ave. The bank will see an overhaul and restoration led by Latent Design and Bauer Latoza Studio. The design calls for a new bank branch, cafe, Blues Museum, and office/coworking space.

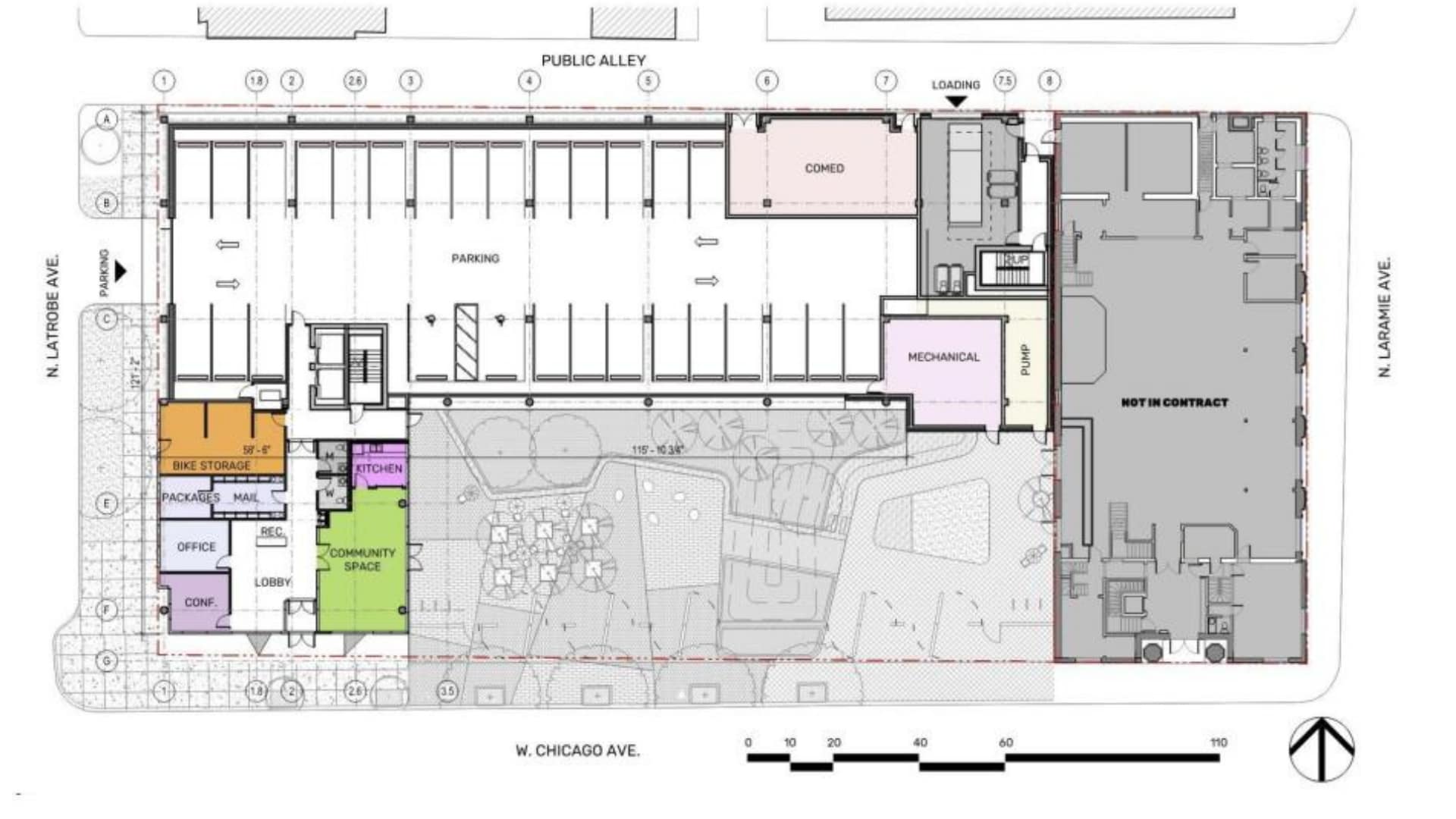
At the ground floor, a conference room will face the corner of W. Chicago Ave and N. Latrobe Ave, while a community room will face out onto the outdoor courtyard space. Between the two, the residential entry will front W. Chicago Ave. An indoor bike room for 43 bikes will have a direct entry from the exterior along N. Latrobe Ave. The rest of the ground floor will hold 28 parking spaces under the northern wing of the building.

Rising 80 feet tall, the mixed-income building will host a total of 78 units, split into 51 affordable units and 27 market-rate units. With a split of 37 one-beds, 36 two-beds, and 5 three-beds, 3 one-beds and 3 two-beds will be priced up to 50% AMI, with 21 on-beds, 20 two-beds, and 4 three-beds priced up to 60% AMI.

With the outdoor space programmed as a public courtyard, the project will use a series of swinging gates to give access to the public while closing it off overnight. Local artists will be recruited to design the gates and a mural on the wall of the Laramie State Bank building.
 
With the structure now complete, general contractor Burling Builders can advance to interior build-out and site improvements, moving closer to delivering high-quality, mixed-income homes to the community.
 
Credits: Chicago Urbanized 
 

View More Articles